opdrachtgever
SCHIPPER BOSCHteam
JAN POOLENANNIKA HERMANS
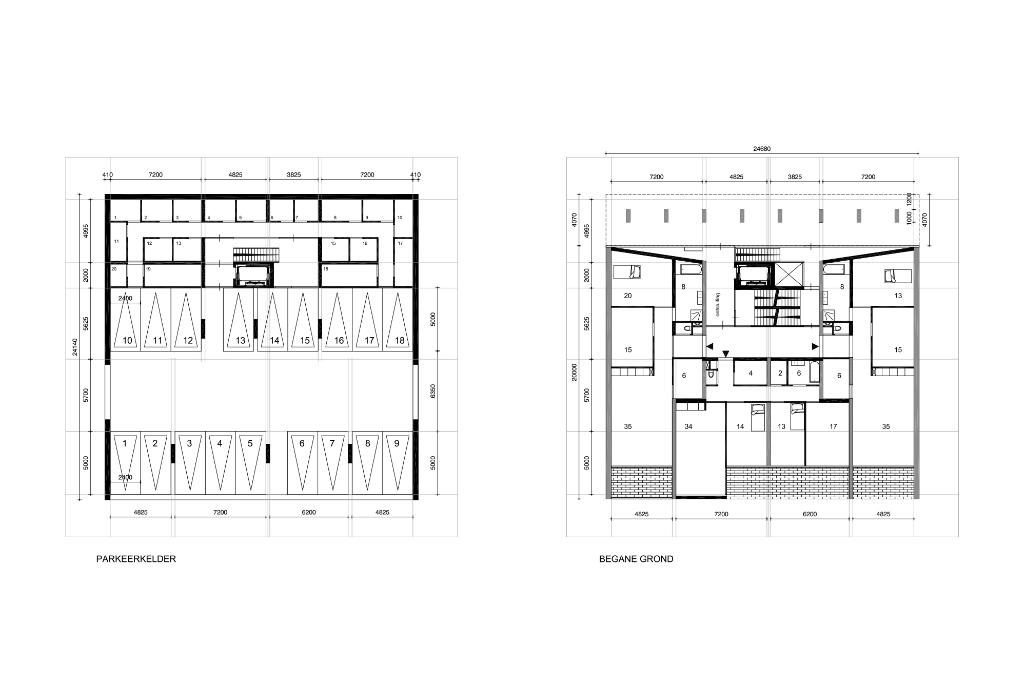
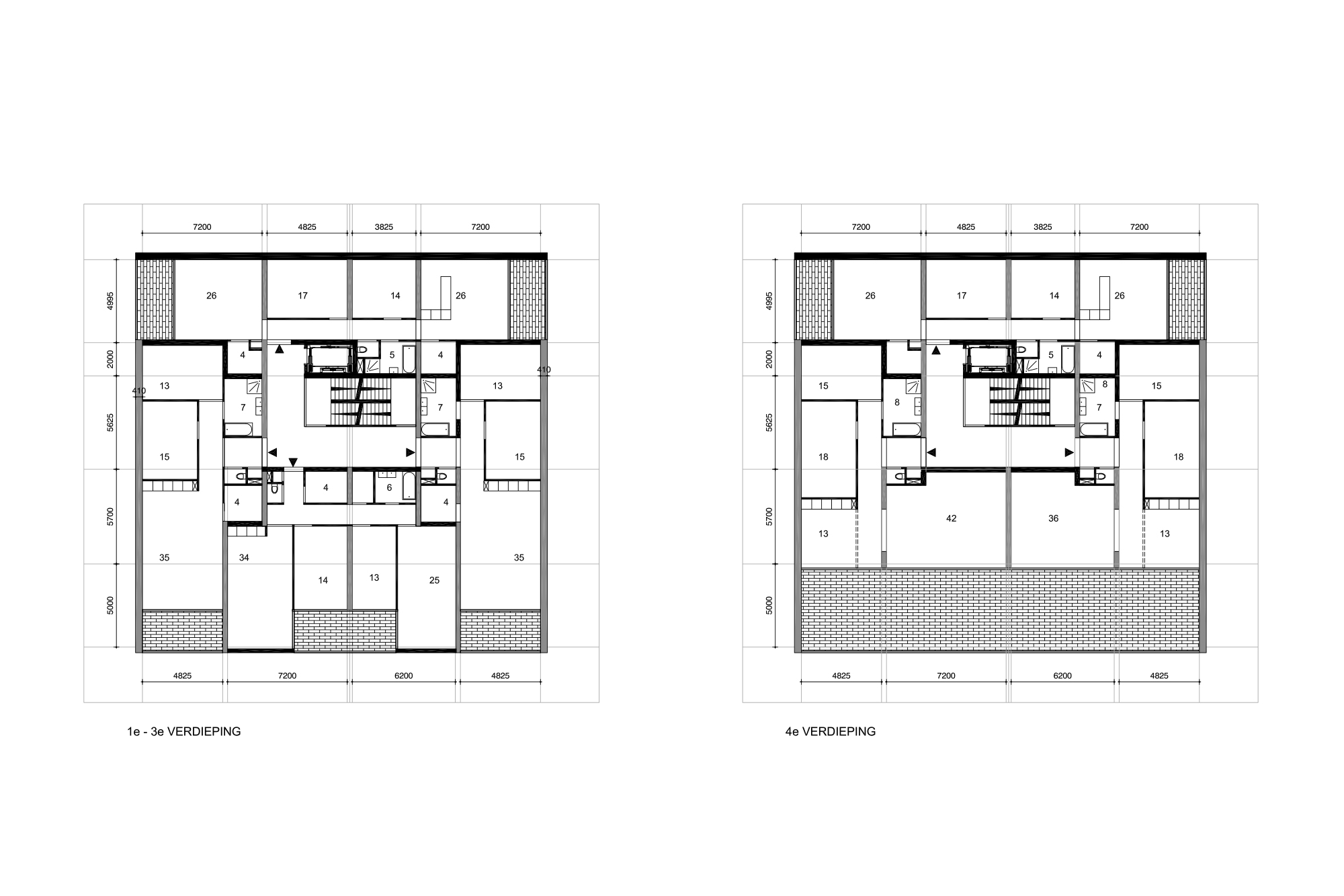
Het plan betreft 3 locaties. Het is gebaseerd op de structuurschets van Smit en Amer Adviseurs BV. Het gebied Bloemweg maakt onderdeel uit van het CSG te Amersfoort en wordt begrensd door de Vlasakkerweg, Utrechtseweg en Kersenbaan. Volgens het stadsvernieuwingsplan zal het een buurt zijn, waar groen en bebouwing met elkaar verweven zijn. De Kersenbaan wordt bepaald door een groene inrichting en een open bebouwingswijze. De locatie Bloemweg en Vlasakkerweg kenmerken zich door een klein stedelijke woonbebouwing. Aan verschillende kanten zijn in de loop der tijd grootschalige gebouwen neergezet. Een overgangsgebied met deels gesloten en deels een open bebouwingsstructuur.
De stedenbouwkundige randvoorwaarden gaan uit van herstel van de straten en wanden aan de Vlasakkerweg en Bloemweg in maximaal 3 lagen en van een meer open structuur in een glooiende setting aan de kersenbaan tot maximaal 15 m.
