opdrachtgever
WOONVERENIGING BIBLIOTHEEK ZONNEHOFteam
JAN POOLENSTEPHAN SARPHATIE
RICK VAN DOLEWEERD
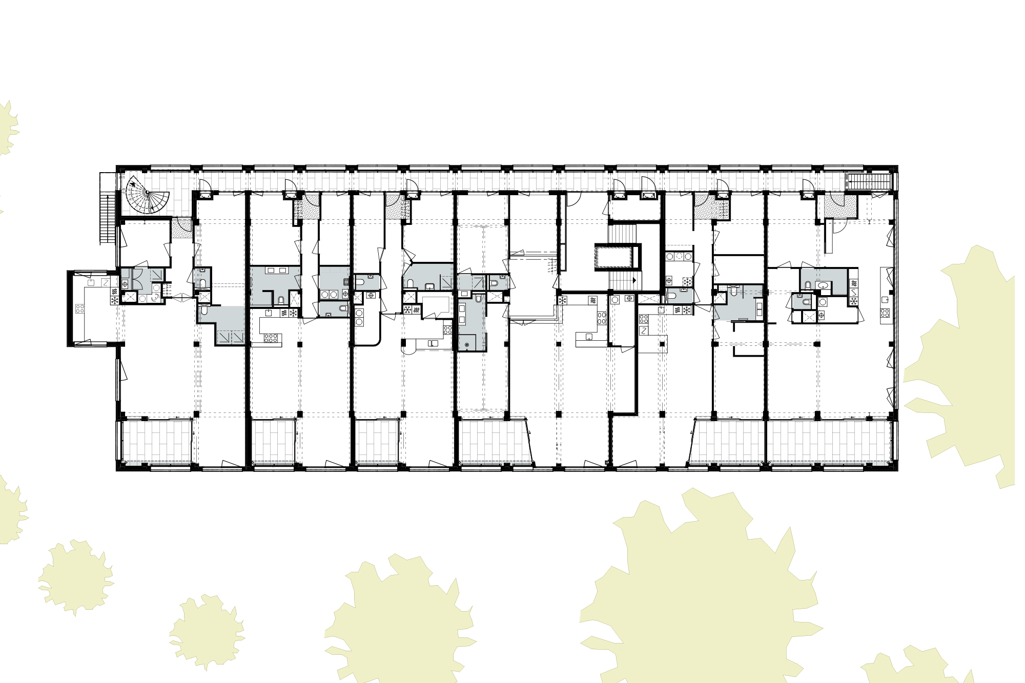
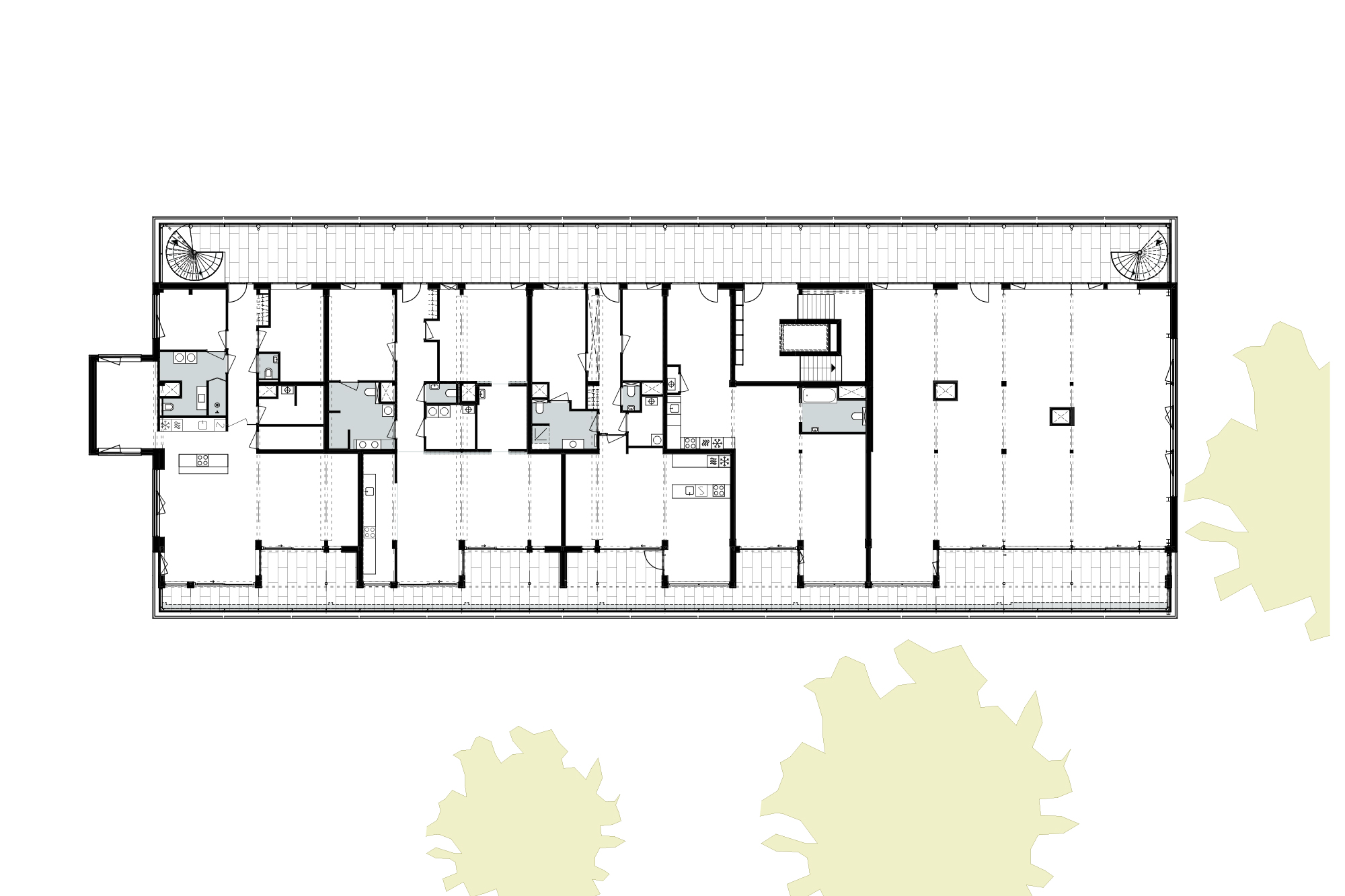
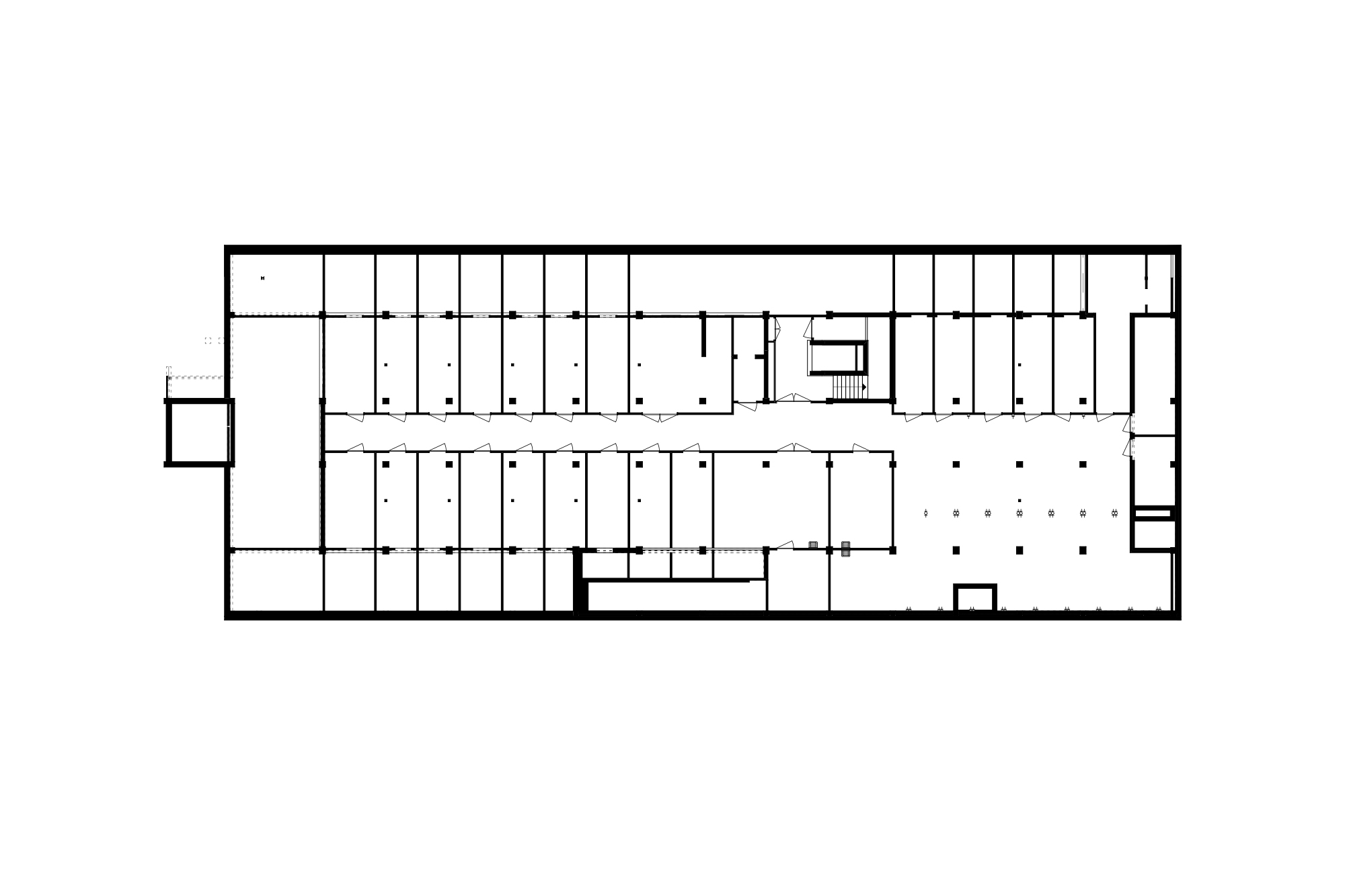
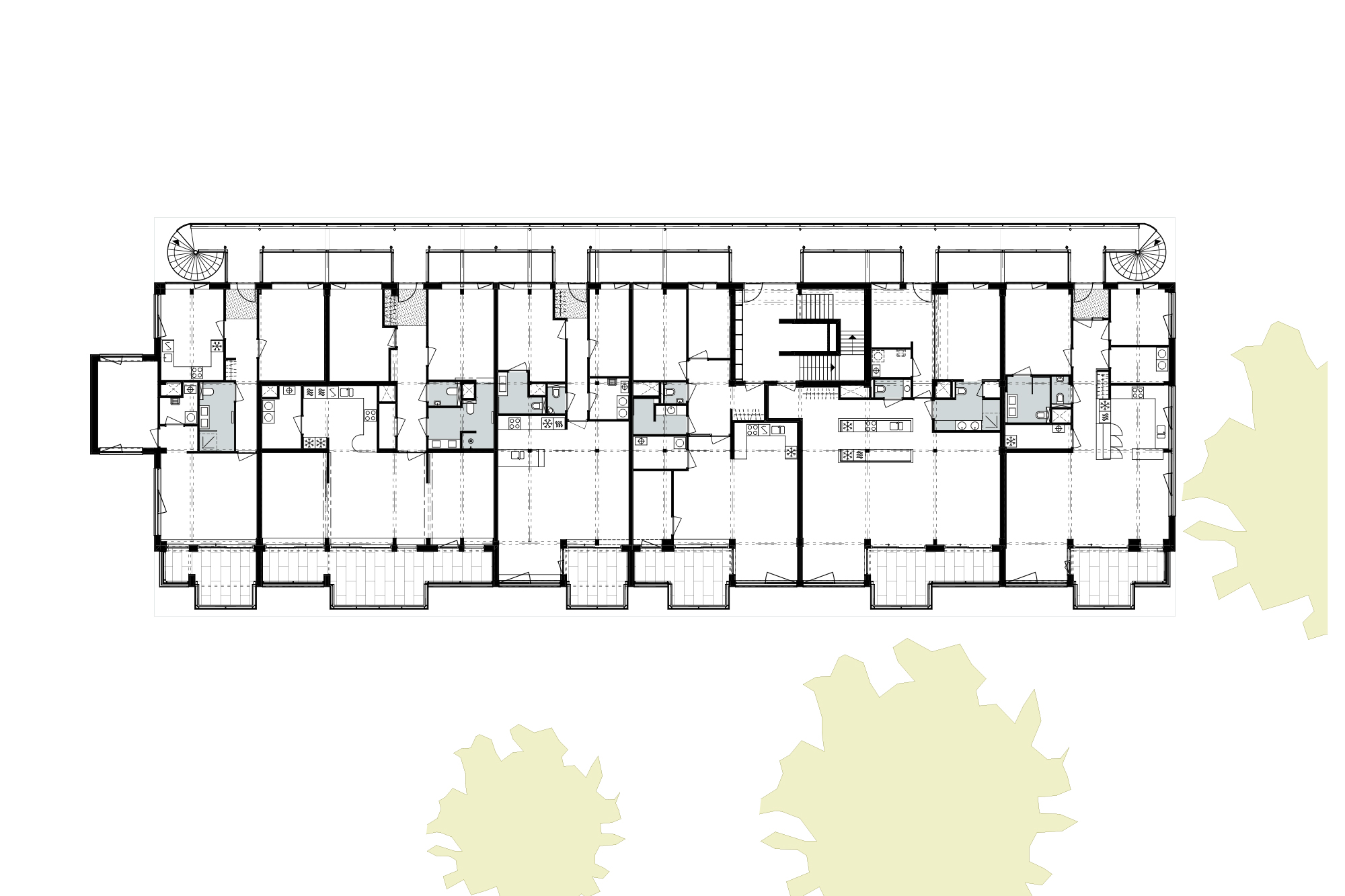
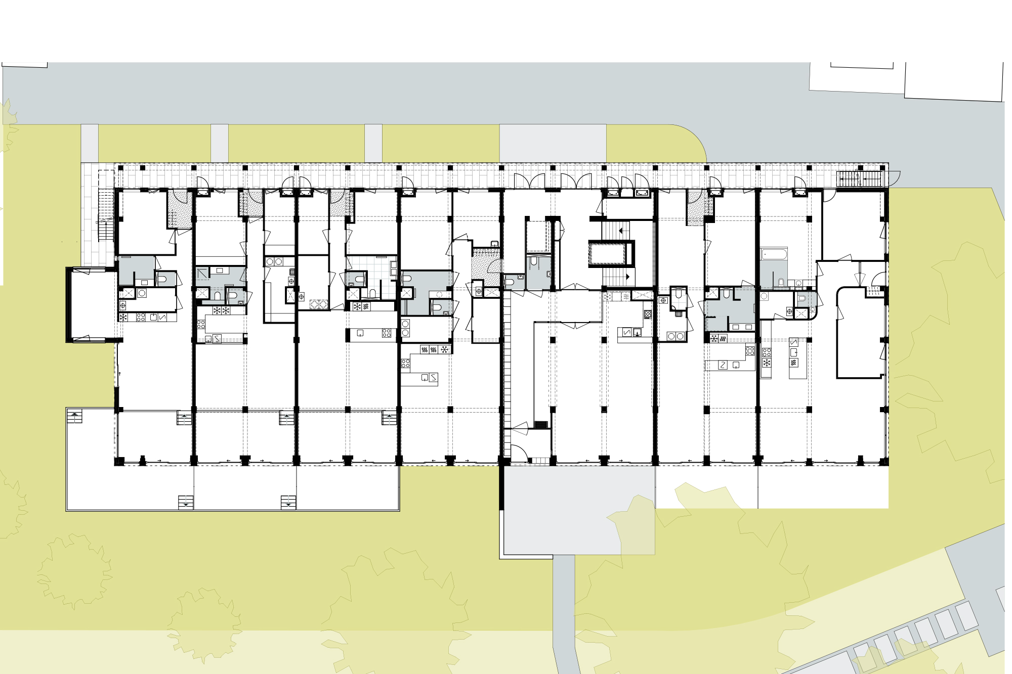
Eind 2017 is het totale project opgeleverd. Het getransformeerde gebouw telt 23 koopwoningen, een gemeenschappelijke kelder met werkruimtes, een gemeenschapsruimte en een gemeenschappelijk te beheren torenkamer die ook als logeerkamer gebruikt kan worden, de spreekwoordelijke kroon op het werk.
Al in 2015 werd – hoe kan het ook anders – voor de naam Boekhuis gekozen. Ook op allerlei manieren wordt gerefereerd aan het vorige leven van dit gebouw. In het hekwerk aan de achterzijde van de pand zijn citaten uit de Nederlandse literatuur verwerkt en de gemeenschappelijke ruimte is voorzien van een enorme boekenkast waar de bewoners hun eigen collecties kunnen plaatsen en delen. Op die manier wordt het verhaal van de bibliotheek doorgegeven. Het Boekhuis is een gebouw met een verhaal, dat dankzij haar vroegere publieke functie, onderdeel is van het collectieve geheugen van de stad.
Ook het stadspark is inmiddels opgeleverd. Beide projecten hebben een zichtbare impuls aan de hele buurt gegeven. De waarde van de woningen in de buurt heeft zich ten opzichte van het stedelijk niveau bovengemiddeld ontwikkeld. Dat is een bijkomend voordeel voor de bewoners, de omwonenden en natuurlijk ook voor de gemeente.