opdrachtgever
SWB LIENDENteam
JAN POOLENSEVERINE KAS
BONNIE SNOEK
SANDER KOK
SABINE SIMONS
jaar
2013programma
ZORGHORECA
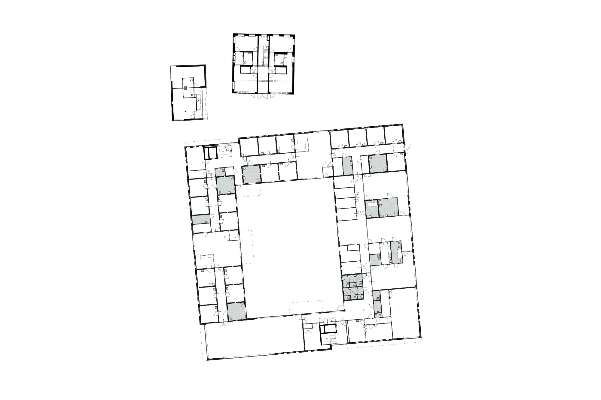
Op een prachtige locatie in het dorp Lienden, ligt ter plaatse van het oude gemeentehuis ruimte voor de ontwikkeling van een zorg hof. Midden in het dorp, onderdeel van het dorpse leven en zo hoort het ook. Wonen en zorg geïntegreerd in de samenleving. Een gevoelige plek met historie, wortels en referenties.
Onze visie gaat er van uit deze wortels te respecteren. Dit plan bouwt voort op de traditie van soberheid en eenvoud. Een hof met het zadeldak als abstractie van het archetypisch huis en daarmee de essentie van dorps bouwen. Het plan wordt specifiek door het ensemble met de oude gebouwen, door de inpassing in het groen en de vormgeving van de overgangen met insnoeringen, erkers en uitbouwen. Eveneens zijn routing en relaties tussen de gebruikers een middel voor de uiting van architectuur Een eenvoudige architectuur, zorgvuldig gedetailleerd met het archetype zadeldak, niet klassiek, maar van nu.