opdrachtgever
OCNWteam
JAN POOLENSTEPHAN SARPHATIE
RICK VAN DOLEWEERD
jaar
2016programma
WONENCOMMERCIEEL
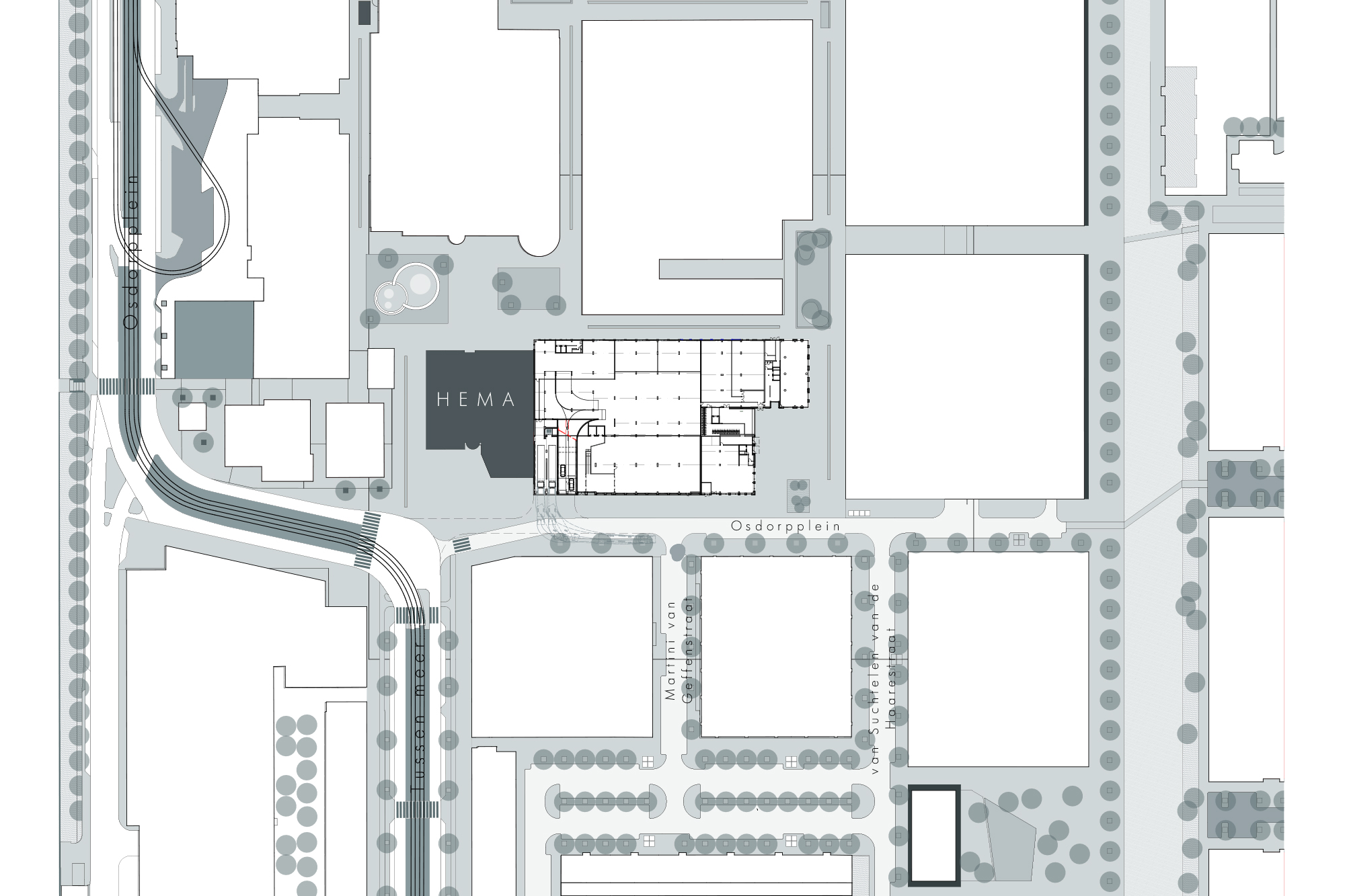
Het ontwerp van HEROS is de uitwerking van de transformatie van één van de centrale delen van het winkelcentrum Osdorpplein. Samen met de andere ontwikkelingen in het gebied vormt zij de uitbreiding en upgrading van het winkelcentrum tot een krachtig en veelzijdig stadsdeelcentrum.Dit stadsdeel Nieuw-West is volop in beweging. Het wordt een gemengd gebied van winkelen, wonen en werken. Initiatiefnemer voor HEROS is LEBO Vastgoed.
Centrum Nieuw-West moet een levendige , stedelijke en kleurrijke plek worden met een Amsterdamse uitstraling. Een bruisend centrum waar je kunt wonen en winkelen maar ook recreëren, uitgaan, eten en ontmoeten. Met de upgrading en nieuwbouw van gebouwen wordt ook het openbaar gebied aangepakt. Het wordt een prachtig verblijfsgebied met interessante functies.
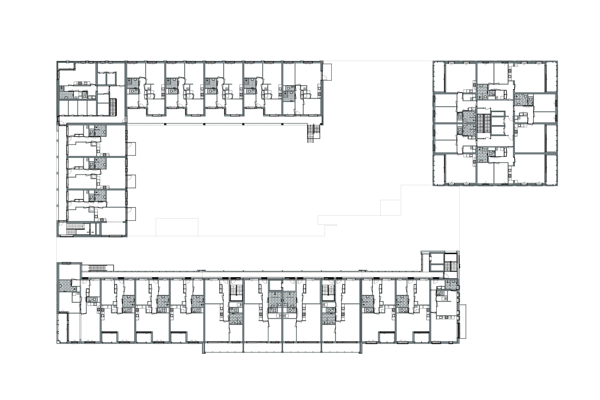
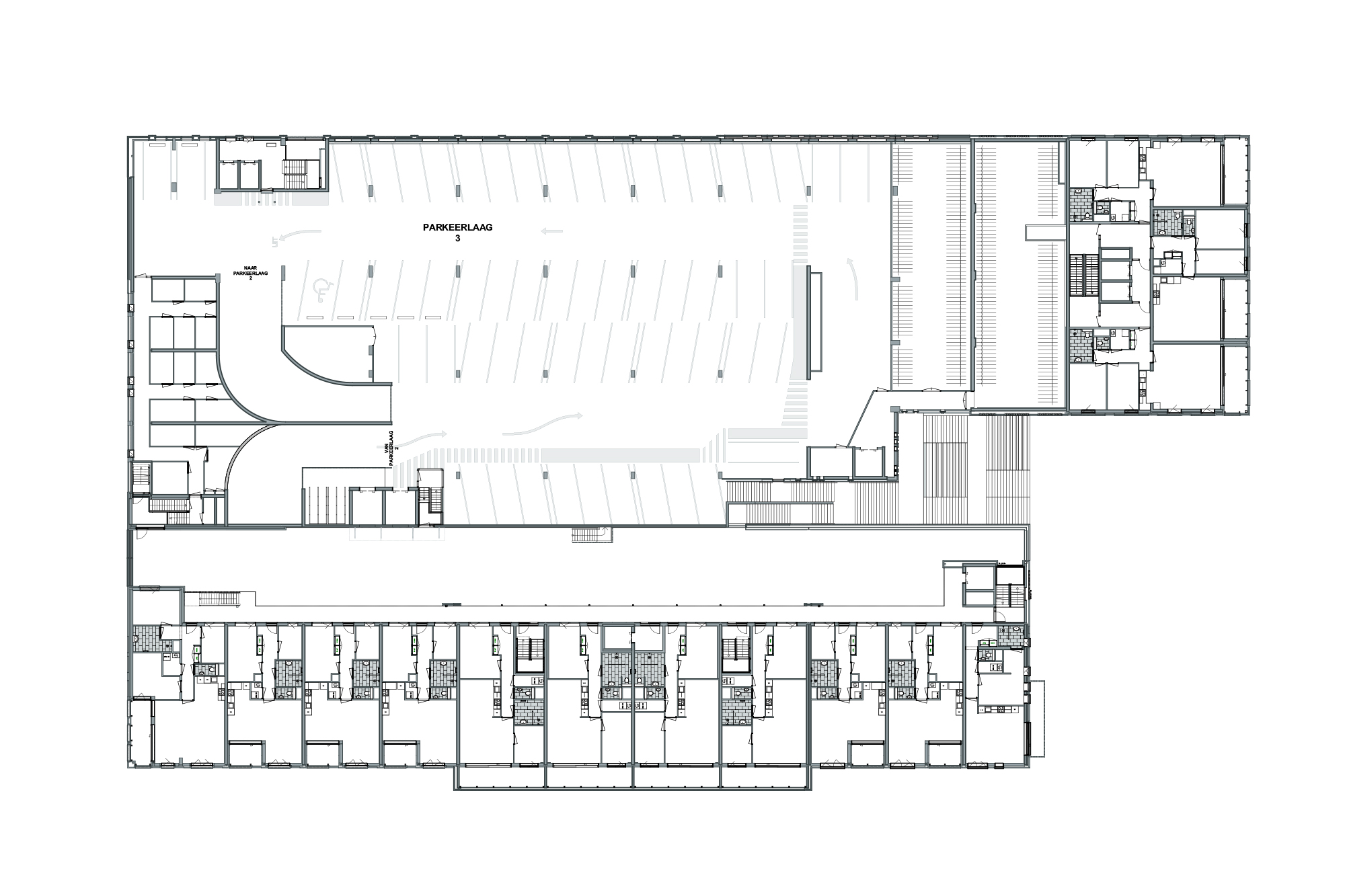
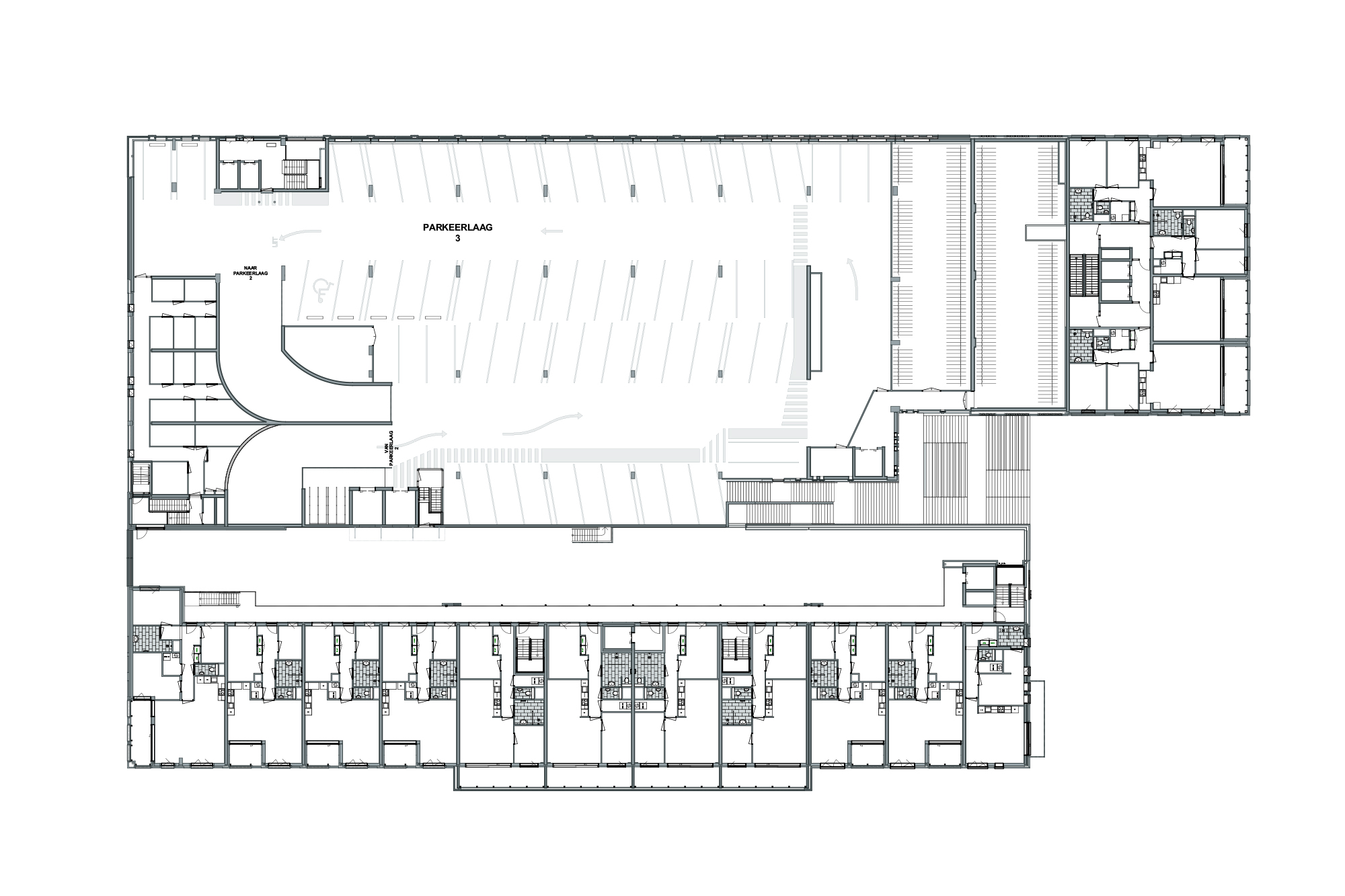
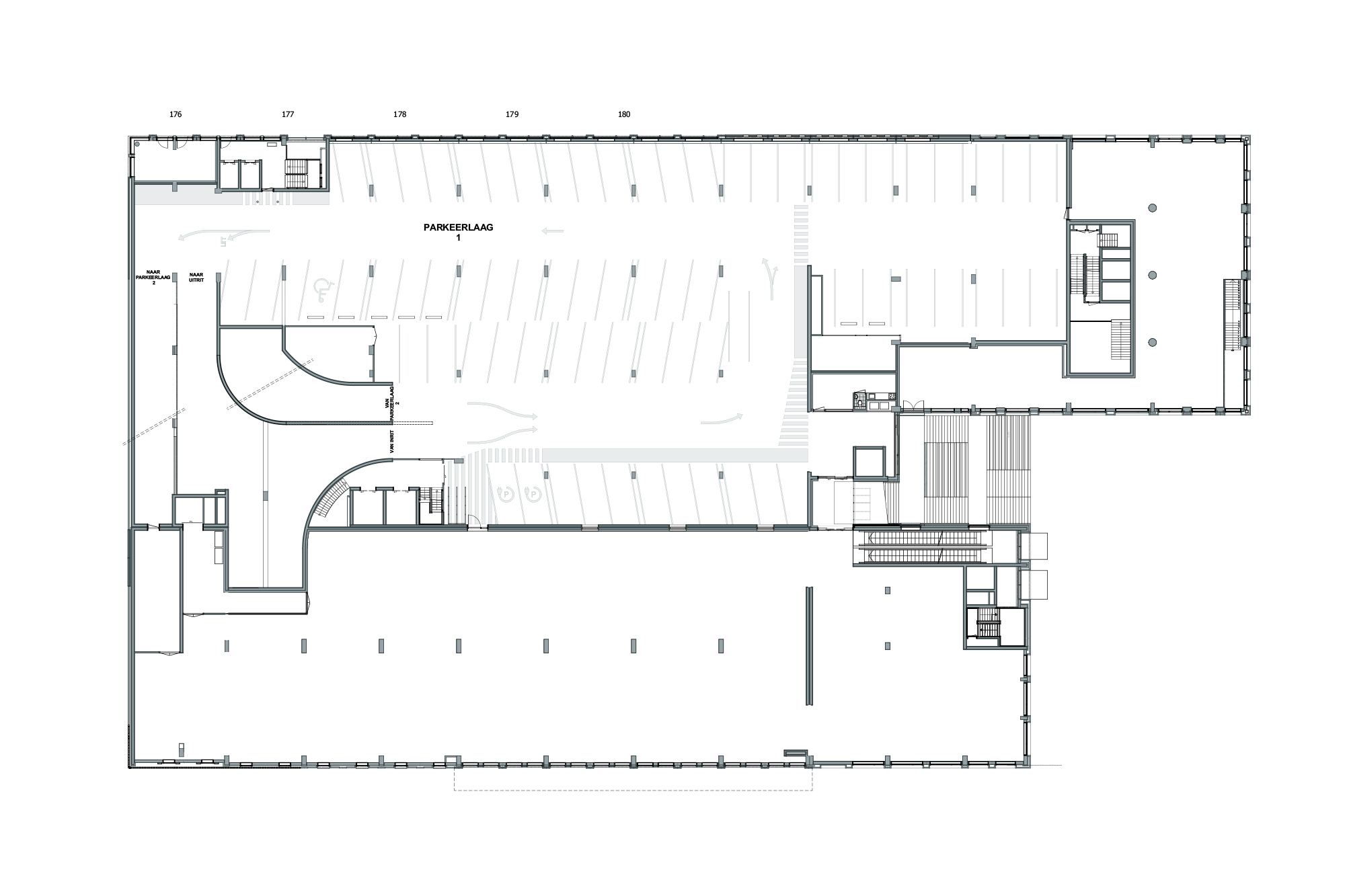
ZEEP architects and urban designers heeft opdracht gekregen het ontwerp te maken van HEROS. De opgave is om een groot stedelijk bouwblok te ontwerpen met commerciële ruimten, horeca, een grote parkeergarage en woningen in verschillende categorieën. Een complexe maar zeer boeiende opgave. Het bouwblok bestaat uit 3 hoofdvolumes met op de kop een hoogte accent tot 42 meter. Het architectonisch idioom van het Nieuwe Bouwen, van Van Eesteren, is een prachtige referentie.
Onze eigen interpretatie maakt de bebouwing tot een eigentijds woon-winkel gebouw. Het parkeren is gesitueerd in het hart van het gebouw in 3 lagen. Een ingenieus circuit om de centraal gelegen ‘kathedraal’. Een ruimte met vides en hellingbanen waarlangs de auto zich beweegt. Het bouwblok heeft een open structuur met een hoog, soms tweelaags, winkelfront. De drie woonblokken omsluiten een groen binnen gebied dat d.m.v. een monumentale trap direct verbonden is met het plein. Dit is de drager van het plan en zorgt, met de entrees van woningen en winkels, voor een zeer dynamisch plein.