opdrachtgever
DIVERSteam
JAN POOLENBRAM VAN BORSELEN
RICK VAN DOLEWEERD
LENNAERT HEET
De Urban villa maakt onderdeel uit van de herontwikkeling van de voormalig leger des heils locatie in de boomrijke en lommerijke villawijk ‘De Berg’ te Amersfoort. Het plan bestaat uit een kleinschalig ensemble van vrijstaande en geschakelde villa’s en een Urban villa, welke zich voegt in de bestaande morfologie van De Berg. De Urban villa heeft met haar locatie aan de rotonde een prominente plek, waar vanuit een mooie zichtas over de Wilhelmina laan tot helemaal aan het stationsgebied loopt. Door zo’n hoge ligging is er tevens zicht op de Onze Lieve Vrouwetoren.
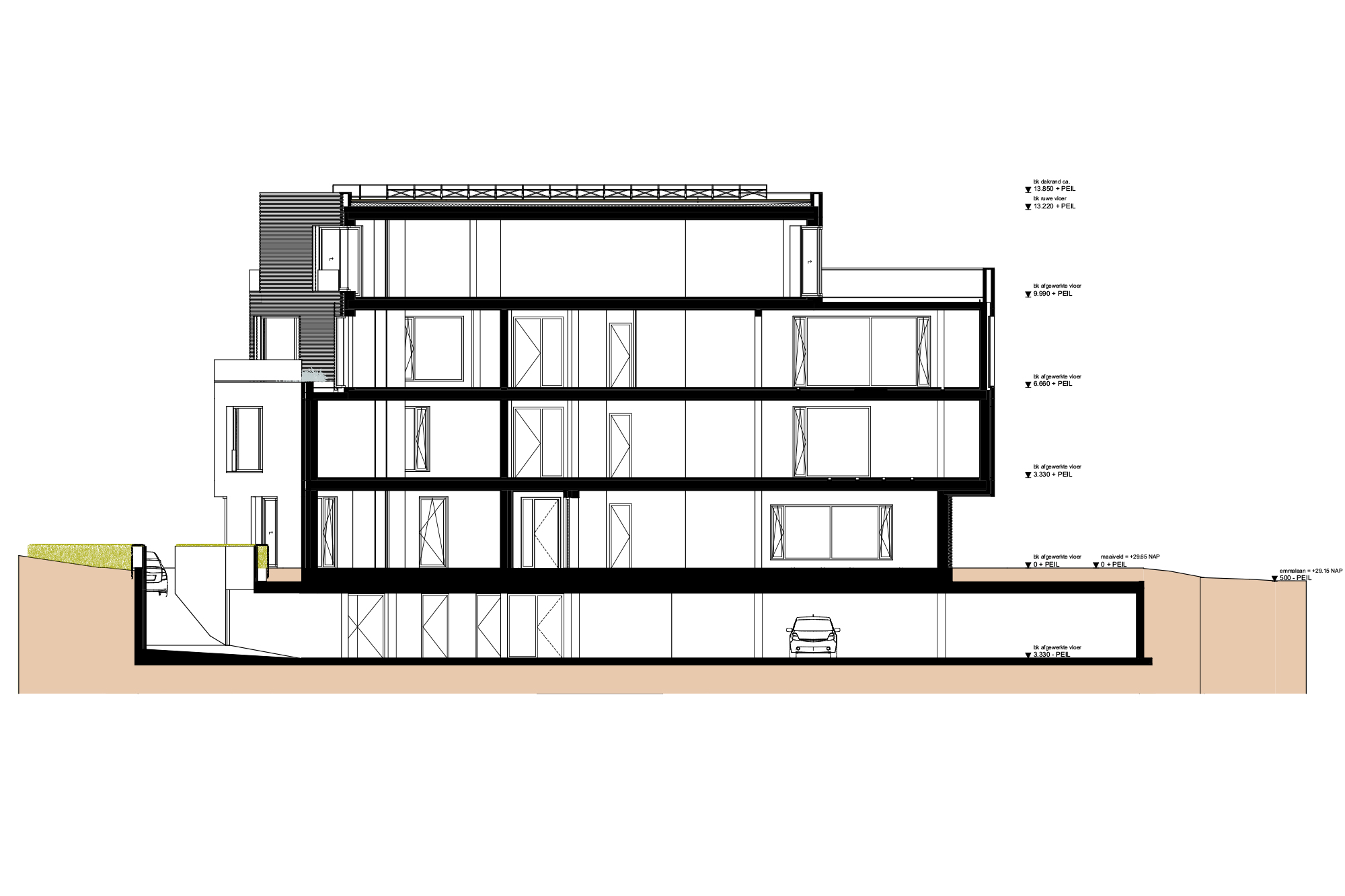
Het bouwvolume is in totaal 4 lagen hoog en opgebouwd uit twee riante woningen per bouwlaag en een penthouse op de bovenste laag. Onder het maaiveld vindt het parkeren plaats. Om niet een frontale gevel te maken aan de rotonde maar juist de twee naast gelegen lanen (Emmalaan en Prins Fredriklaan) te begeleiden is het volume gefacetteerd opgebouwd. Het gaat daarbij om een samengestelde massa bestaande uit twee in elkaar geschoven volumes welke in maat en schaal aansluiting vinden met de naast gelegen kleinere bouwvolumes. Om het gebouw meer in z’n context te zetten en daarmee beter te laten aansluiten met naastgelegen volumes is er middels overstekken en set backs over wisselende hoogte plasticiteit gegeven aan de massa. Het gebouw heeft daarmee verschillende gezichten en beleef je de vorm dynamisch in perspectief.
De Urban villa komt te staan in een boomrijke glooiende groene setting met aan de zuidkant in het centrum van het terrein een gemeenschappelijke Engelse landschapstuin. De hoofdentree ligt aan de rotonde en vanuit de lobby is er ook direct verbinding met deze tuin. De buitenruimten van de appartementen zijn sterk gekoppeld aan de leefruimte en oriënteren zich op de tuin. De buitenruimte zijn verschillend in typologie en van vorm, waardoor privacy gewaarborgd blijft en er een gevarieerd gevelbeeld ontstaat.
De gevels zijn benaderd als een compositie van dicht en open, waarbij zeer grote gevelopeningen in een verder gesloten vlak het beeld domineren en welke worden afgewisseld met kleine en ook verborgen openingen achter opengewerkt “Braziliaans” metselwerk. Afhankelijk van de positie en het uitzicht van de gevelopeningen wordt er gevarieerd met de diepte of vorm van de negge, waarbij een kozijn soms ook de hoek om gaat. De gevels zijn opgetrokken uit metselwerk met een specifieke bijzonder lange steen, waarmee verschillende metselwerk verbanden worden gemaakt. De gevels die te herkennen zijn als set back worden benadrukt door een reliëf in het metselwerkverband. Het metselwerk wordt afgewisseld met glad stucwerk ter plaatse van schuine negge’s en inpandige buitenruimte.
Het ontwerp is die van een architectuur die expliciet is in vorm en dynamisch in gevelbeeld waarbij de gekozen materialen samen komen met een zorgvuldig detaillering en het gebouw de benodigde plasticiteit en tactiliteit geeft. De alzijdigheid en positionering het gebouw en haar gevelopeningen biedt de woningen bijzondere uitzichten op de omgeving, waarbij de oriëntatie van buitenruimte het wonen verbindt met de landschapstuin en boomrijke omgeving. De Urban villa ademt de kwaliteit van het bergkwartier en geeft tegelijkertijd antwoord op de behoefte van deze tijd, waarmee het een passend en verrassend nieuw tijdsbeeld toevoegt aan het bergkwartier.
Het plan kent een consumentgericht ontwikkelproces middels begeleid particulier opdrachtgeverschap. Deze formule heeft als voordeel dat de wensen van de koper in een vroeg stadium kenbaar gemaakt kunnen worden en dat er wordt gewerkt met een vast team die de kopers begeleiden tijdens het ontwerp- en bouwproces. Met de kopers zullen de plattegronden verder ontwikkeld worden.