WOZOCO OPHEUSDEN

opdrachtgever
SWB LIENDEN
team
RONALD VAN AGGELEN
PAUL BOS
GERT VAN EIJDEN
LINDA MARTENS
jaar
2013
programma
ZORG
WONEN
BIBLIOTHEEK
status
GEREALISEERD
locatie
OPHEUSDEN

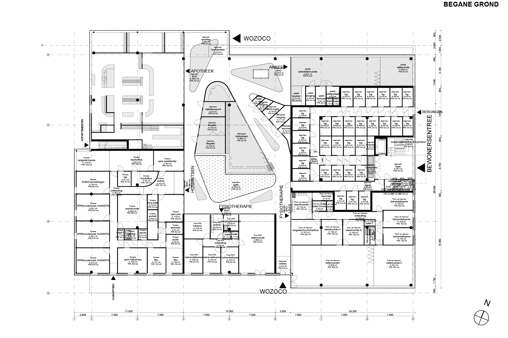
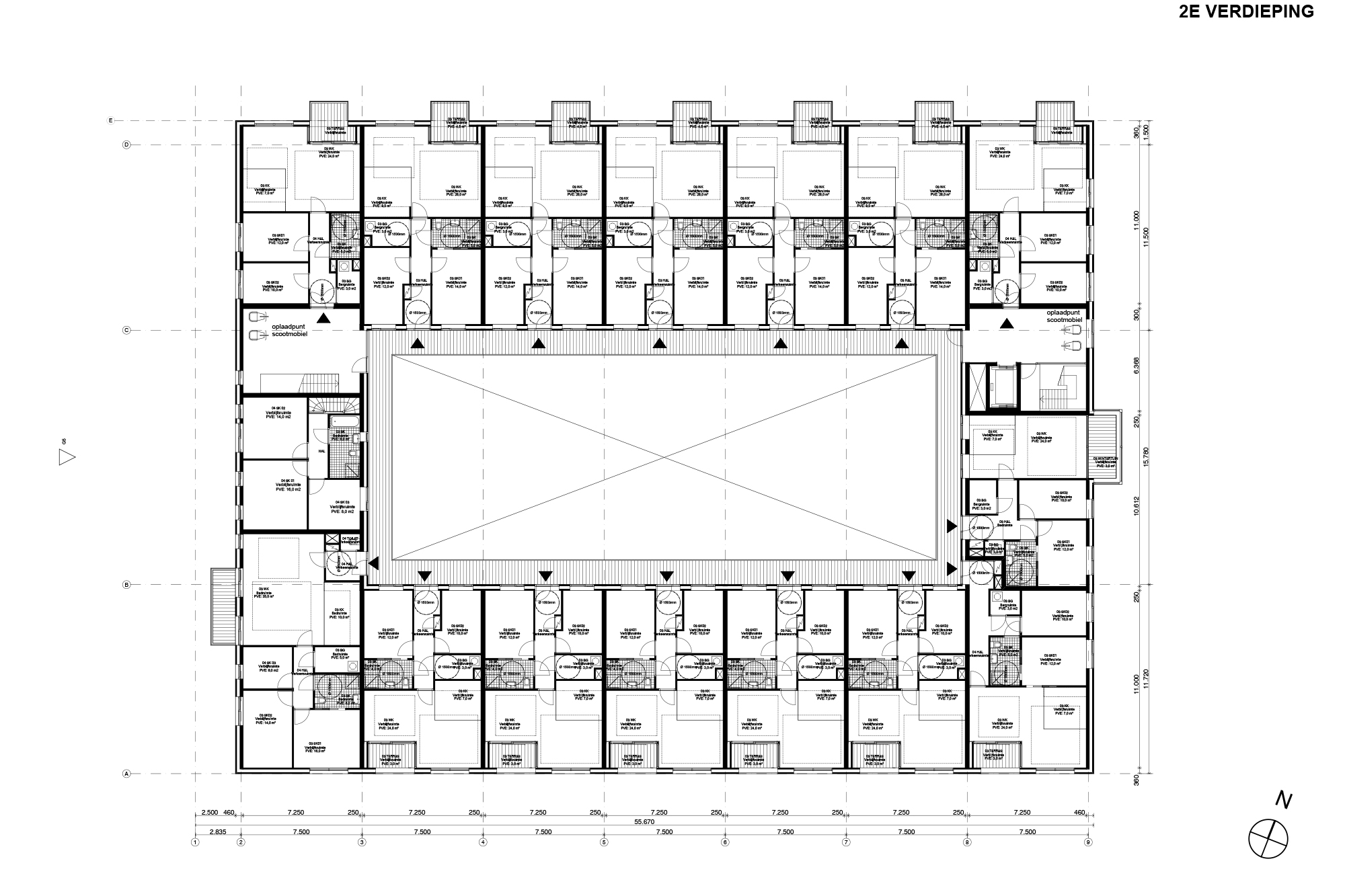
Het plan, bestaande uit 46 grondgebonden woningen en een WOZOCO met 2.000 m2 zorgplint en 31 appartementen, is onderdeel van de herstructurering van een jaren 50 wijk in Opheusden. Zeer bepalend in de wijk is de de stroken verkaveling met strenge kaprichting. Opvallend aan de jaren 50 wijk is dat de oorspronkelijke bebouwing met veel aandacht voor detail en materiaal ontworpen is. De verschijningsvorm van de bestaande jaren 50 woningen vormt dan ook aanleiding voor de architectuur voor het nieuwe plan: een sobere morfologie, aansluitend op de jaren 50 stedenbouw van de omgeving met rijke detaillering en materialisering.

Woningen uit de omgeving zijn gebruikt als bouwstenen voor het woonprogramma van het WOZOCO.