ZEEPFABRIEK

opdrachtgever
ZEEP
team
JAN POOLEN
STEPHAN SARPHATIE
MARK VAN DEN BOORN
RONALD VAN AGGELEN
WIJNAND BAKKER
jaar
2011
programma
KANTOOR
status
GEREALISEERD
locatie
AMERSFOORT

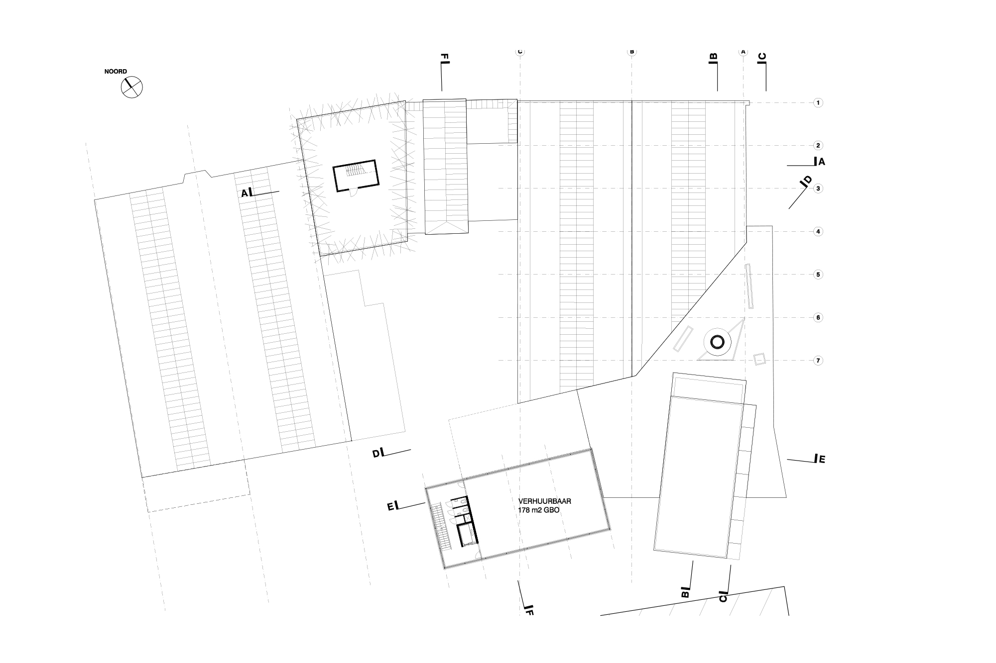
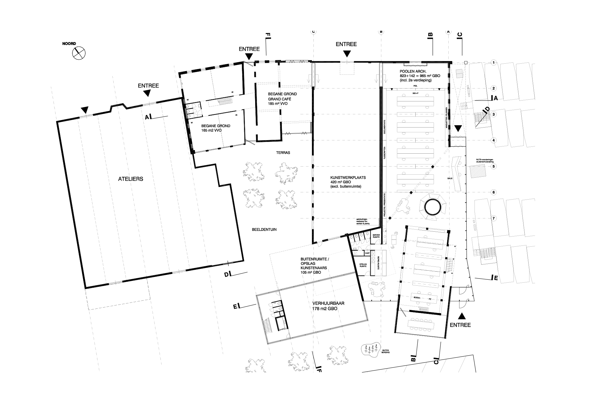
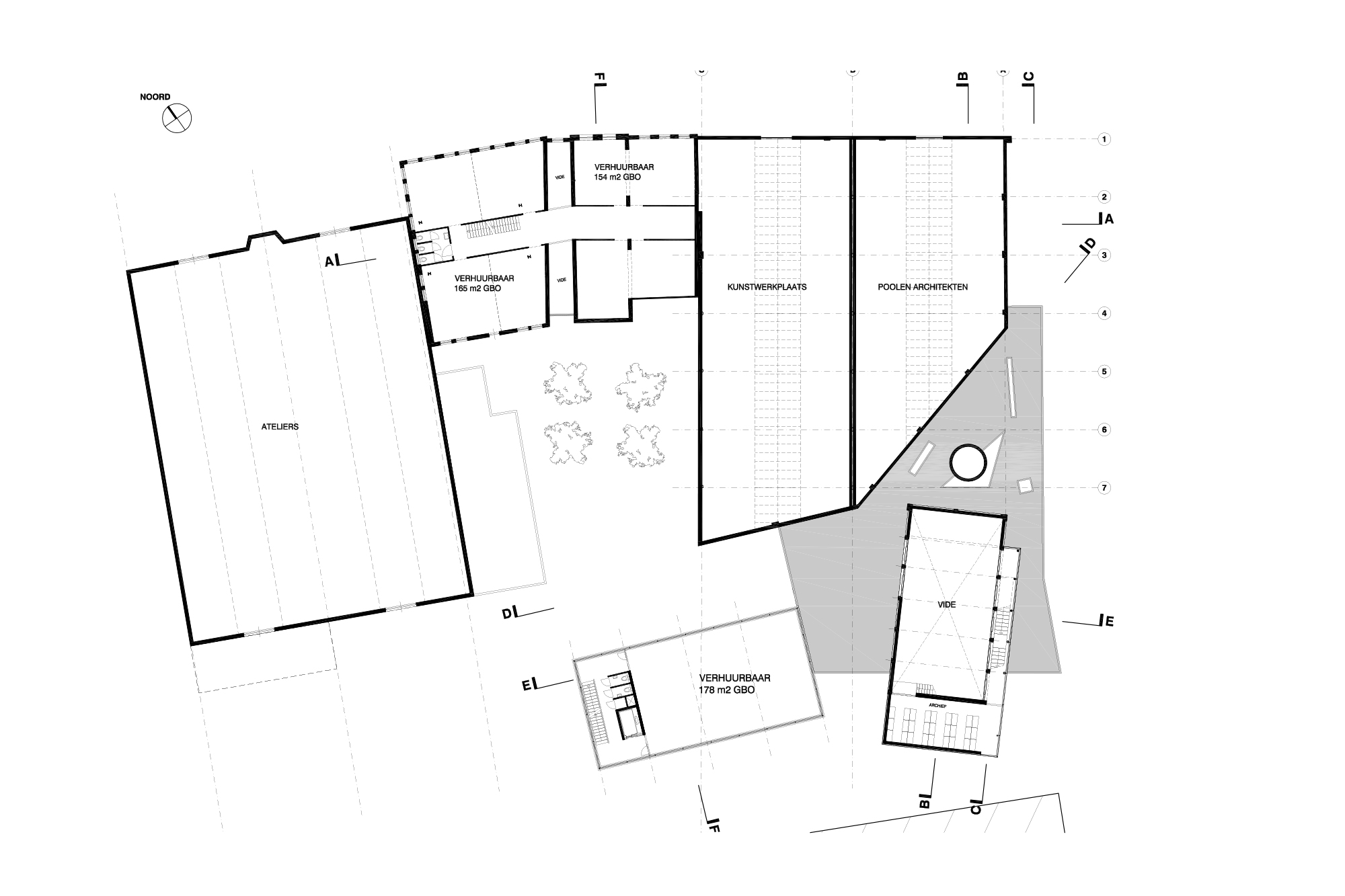
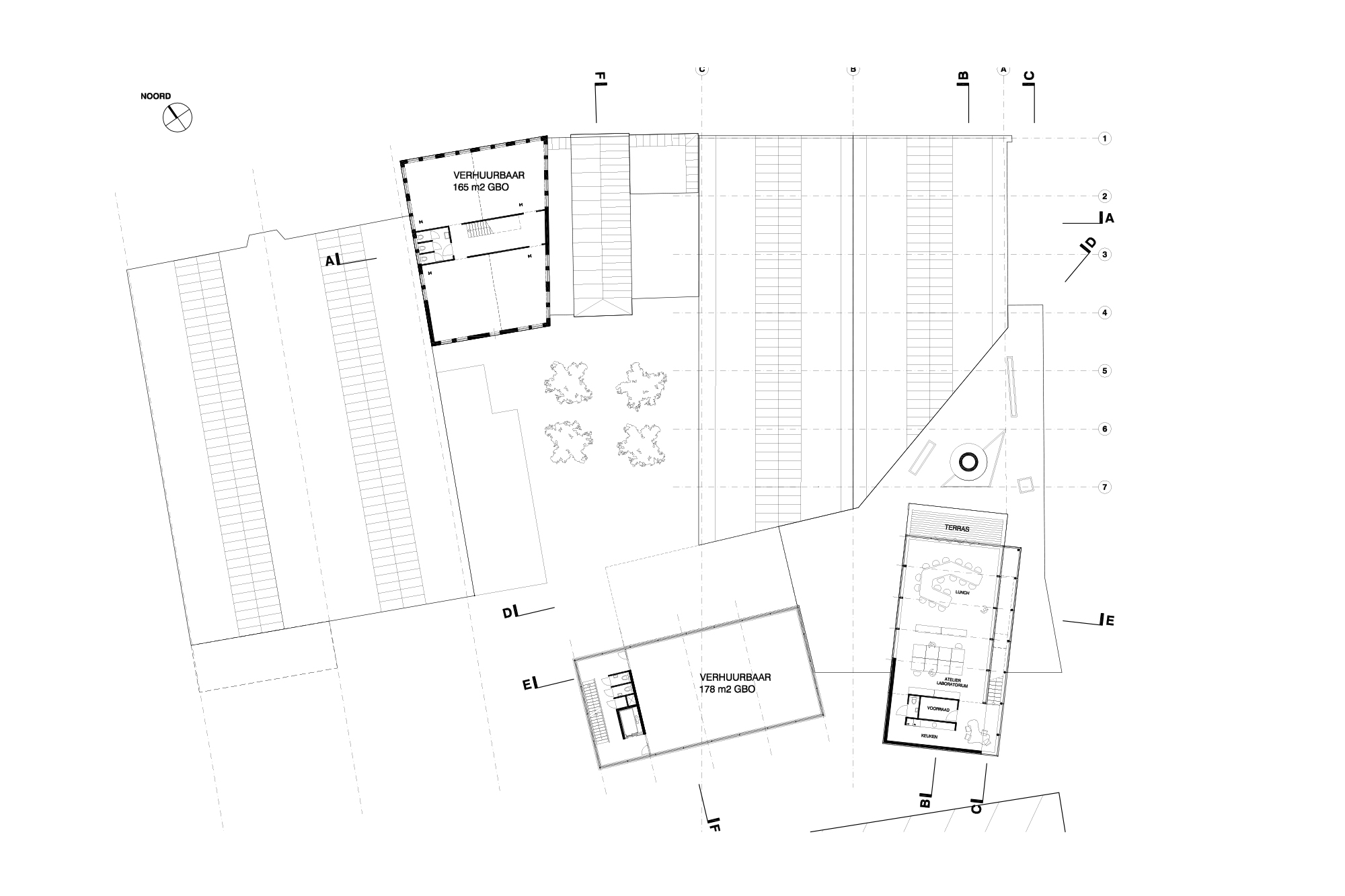
Het voormalig kantoor van ZEEP architects and urban designers maakt onderdeel uit van de oude, getransformeerde fabrieken van Rohm and Haas. Een ensemble van prachtig industrieel erfgoed voor creatieve bedrijven. Als architect en initiator van het totale ensemble is het industriële karakter voor ons uitgangspunt geweest in het ontwerp, ook van ons eigen deel. De prachtige hal met dunne stalen spanten ondersteunen het markante accolade dak. De schoorsteen, die eerst buiten stond, is nu onderdeel van het interieur geworden. Door middel van doorzichten en verlichting is deze schoorsteen overal waarneembaar. Het ketelhuis is opnieuw opgebouwd en verrijkt met een glazen opbouw die goed de gelaagdheid weergeeft.

De materialisatie en inrichting zijn neutraal gehouden om de ruimte optimaal tot zijn recht te laten komen. De werkruimte is uitgevoerd in hoog gepolijst wit. Meubels in eikenhout voegen zich in deze serene ruimte. Deze meubels zijn door ons zelf ontworpen. Gepolijst beton, baksteen en hout zijn originele materialen. Wat buiten was, is in wit uitgevoerd met in de plafonds ingesneden armaturen en kozijnloos glas. De nieuwbouw is opgetrokken uit geconserveerde cortenstalen platen. De gevouwen stalen trap ligt buiten het oude volume. Ca. 1.000 m2 voor ZEEP als onderdeel van de samenwerkende creatieve bedrijven. Een prachtige plek in de stad, een prachtige plek voor de stad. Begonnen als eigen initiatief en later samen met kunstenaars uitgevoerd in opdracht van BOEI (Nationale maatschappij tot behoud, ontwikkeling, en exploitatie van industrieel erfgoed). Vanuit deze zeepfabriek hebben wij plannen ontwikkeld voor de urban ontwikkeling van het hele gebied.