CSV/ROC A12

opdrachtgever
CSV VEENENDAAL
ROC A12 EDE
team
JAN POOLEN
STEPHAN SARPHATIEFRANK KROEZE
jaar
2010
programma
ONDERWIJS
status
GEREALISEERD
locatie
VEENENDAAL

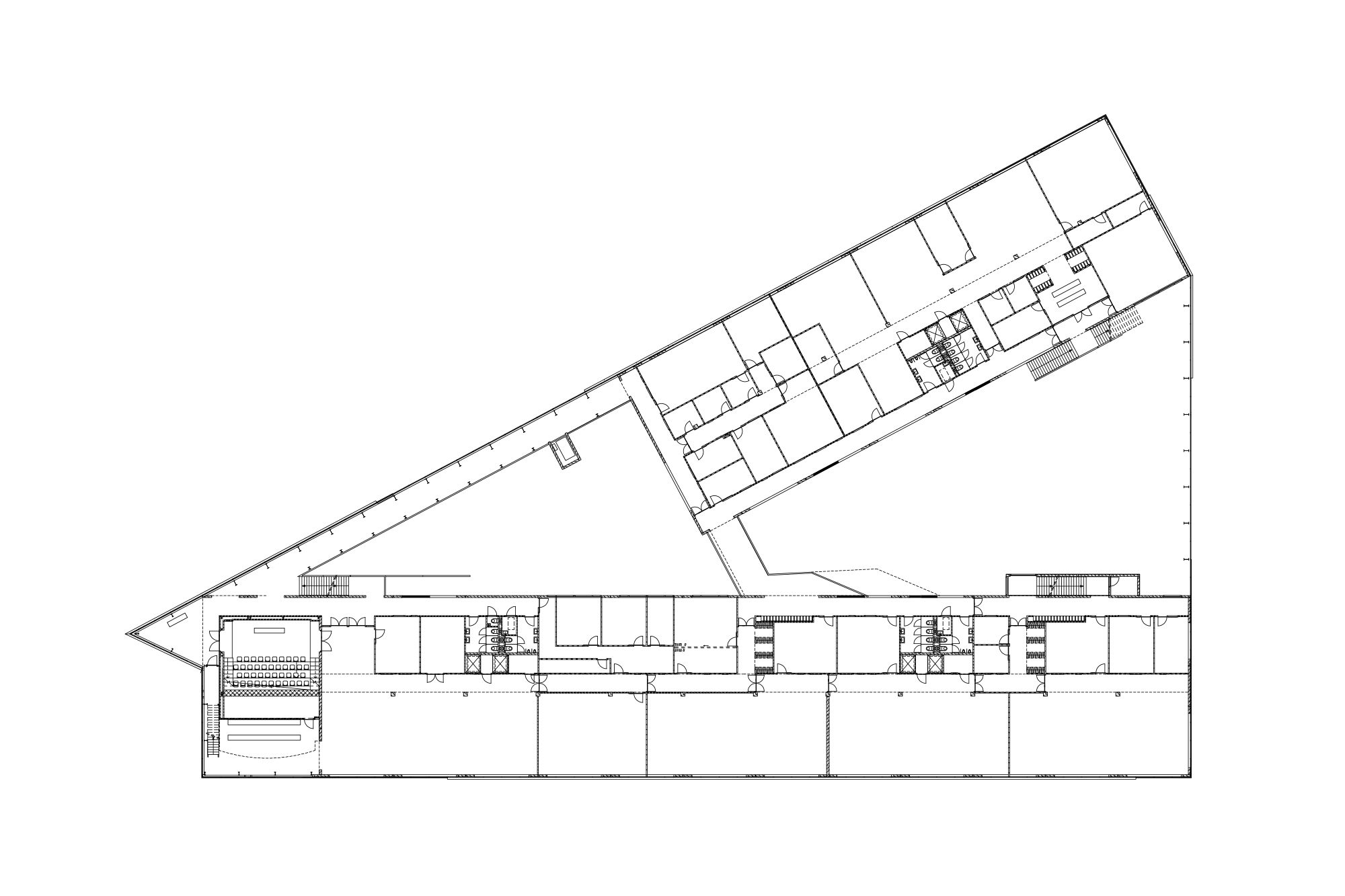
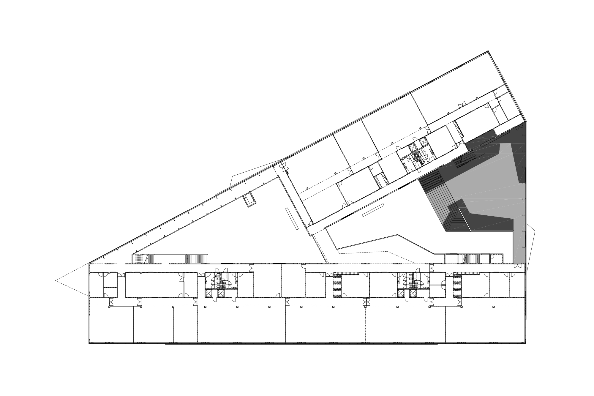
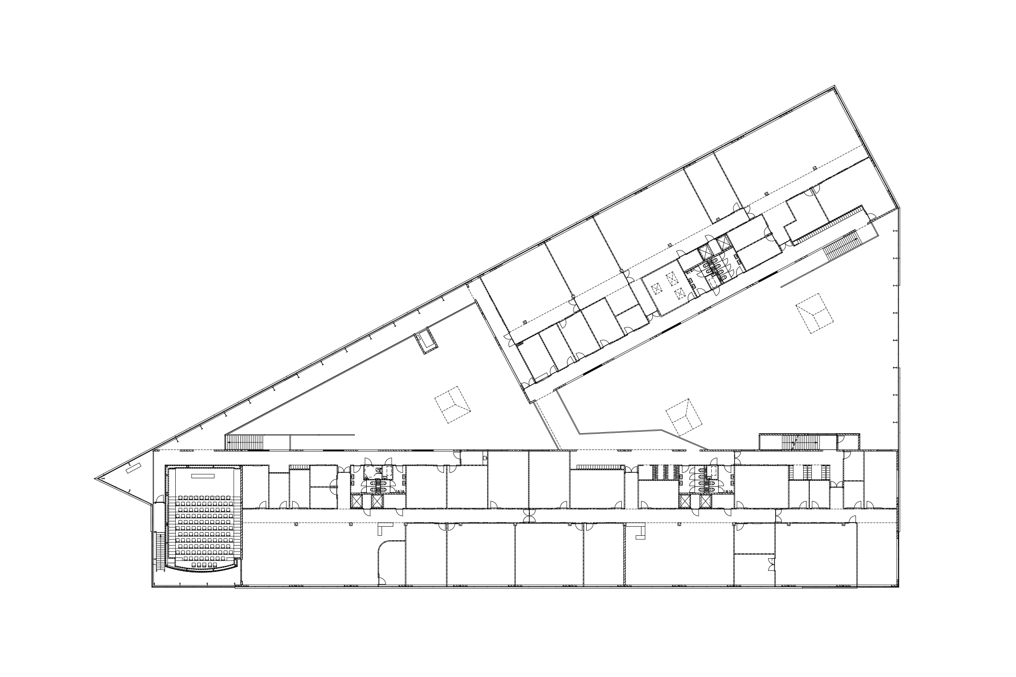
In samenwerking met Matrix bouw & ontwikkeling is er een plan gemaakt voor een VMBO en een ROC school. Deze waren gehuisvest op verschillende locaties in Veenendaal en zijn nu in een gebouw van 13.500 m2 samengebracht. Dit gebouw is ontworpen volgens het ‘Living Building Concept’, een werkwijze waarbij uitgegaan wordt van een langdurig huisvestingsbeleid, waarbij investeringskeuzes worden uitgezet tegen toekomstige flexibiliteit en exploitatie. In dit project is een uitgebreide analyse van de locatie en het PVE gemaakt. Het PVE is vertaald in een flexibele ruimtelijke structuur op de locatie.

Het concept bestaat uit twee onderwijs volumes, die zo zijn gepositioneerd dat er een grote ontmoetingsruimte tussen ontstaat. In het atrium verbinden loopbruggen, trappen en ontmoetingsplekken de twee volumes. Het gebouw is omhuld door een rood horizontaal geleed volume met een grote overstekende foyer in de expressieve punt van het gebouw.