BON VIE

opdrachtgever
BETUWS WONEN
W6 CULEMBORG
team
JAN POOLEN
ROEL TEN BRAS
SEVERINE KAS
GERT VAN EIJDEN
SANDER KOK
SANDER VREDEVELD
jaar
2008
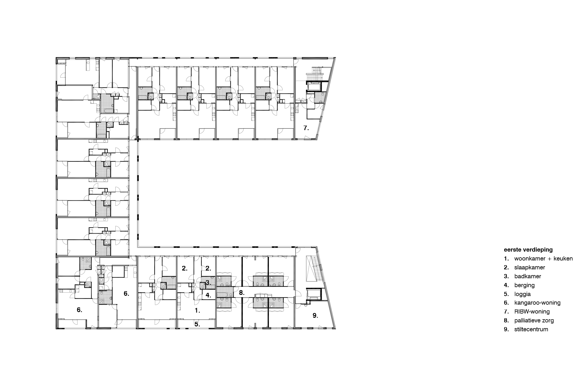
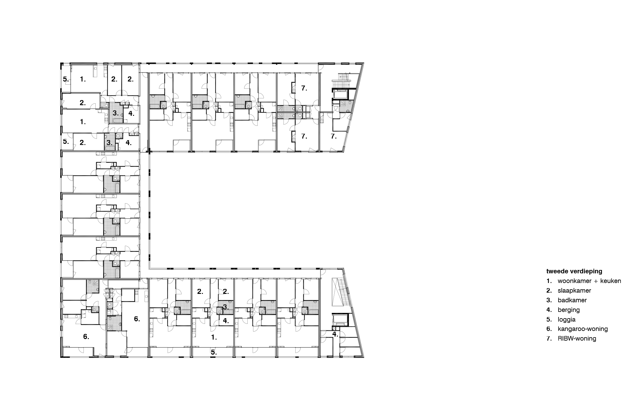
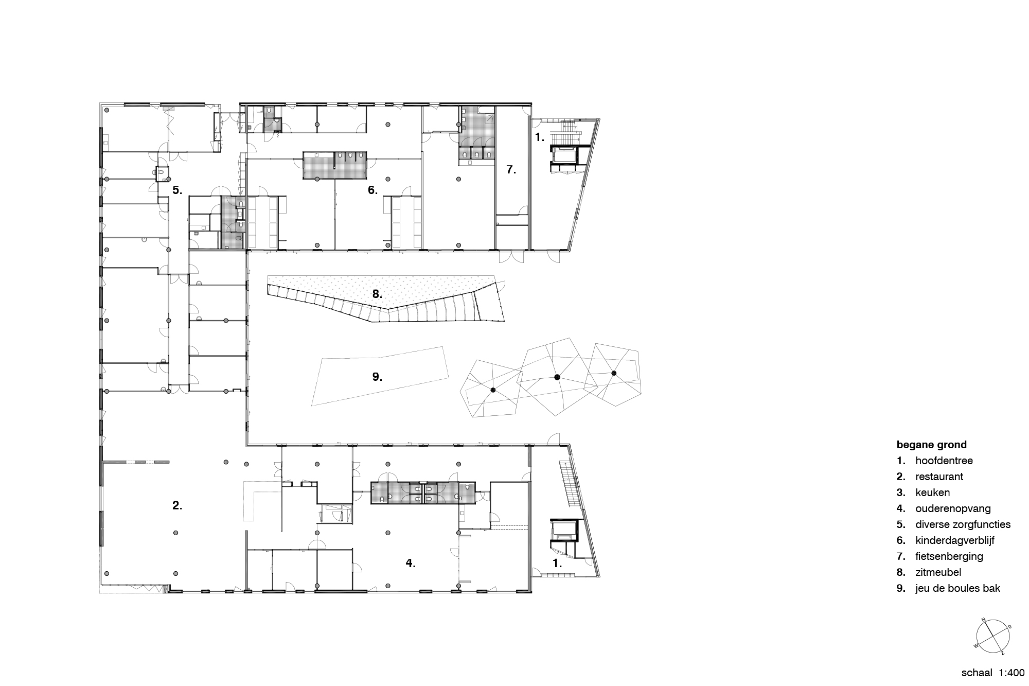
programma
WONEN
ZORG
status
GEREALISEERD
locatie
CULEMBORG

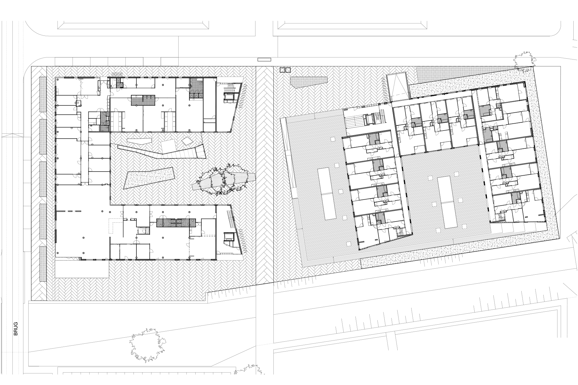
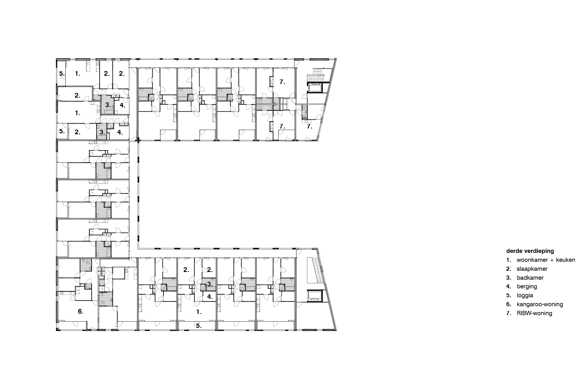
Het centrum voor wonen en zorg BonVie is gelegen in het voorzieningencentrum van Parijsch-Zuid te Culemborg. Er is bewust gekozen voor open bouwblokken om de binnenruimte onderdeel te laten zijn van de openbare ruimte. De blokken zijn enigszins ten opzichte van elkaar gedraaid, waardoor ze een interessant ensemble opleveren. Het zorggedeelte bestaat uit een doorlopende verbindende servicezone.

 

Hier liggen het kinderdagverblijf, de kinderpraktijk en het consultatiebureau bij elkaar aan de noordzijde en anderzijds het SWOC-restaurant-zotel aan de zuidvleugel. De buitengevel is van ruw bruin-paars metselwerk met wisselende penanten en horizontale banden als een filigrain gevelpositie. Aan de binnenhoven ligt een regelmatig grid van wit stucwerk, en een terugliggende gevel met een fris grasmotief. Zo ontstaat er een duidelijke binnen- en buitenzijde, die ter plaatse van het centrale plein, de voetgangersroute, bij elkaar komen.