opdrachtgever
STICHTING ZORGCOMBINATIEMARGA KLOMPÈ
INTERBOUWCONSULT
team
JAN POOLENSTEPHAN SARPHATIE
BONNIE SNOEK
SIMON WASSINK
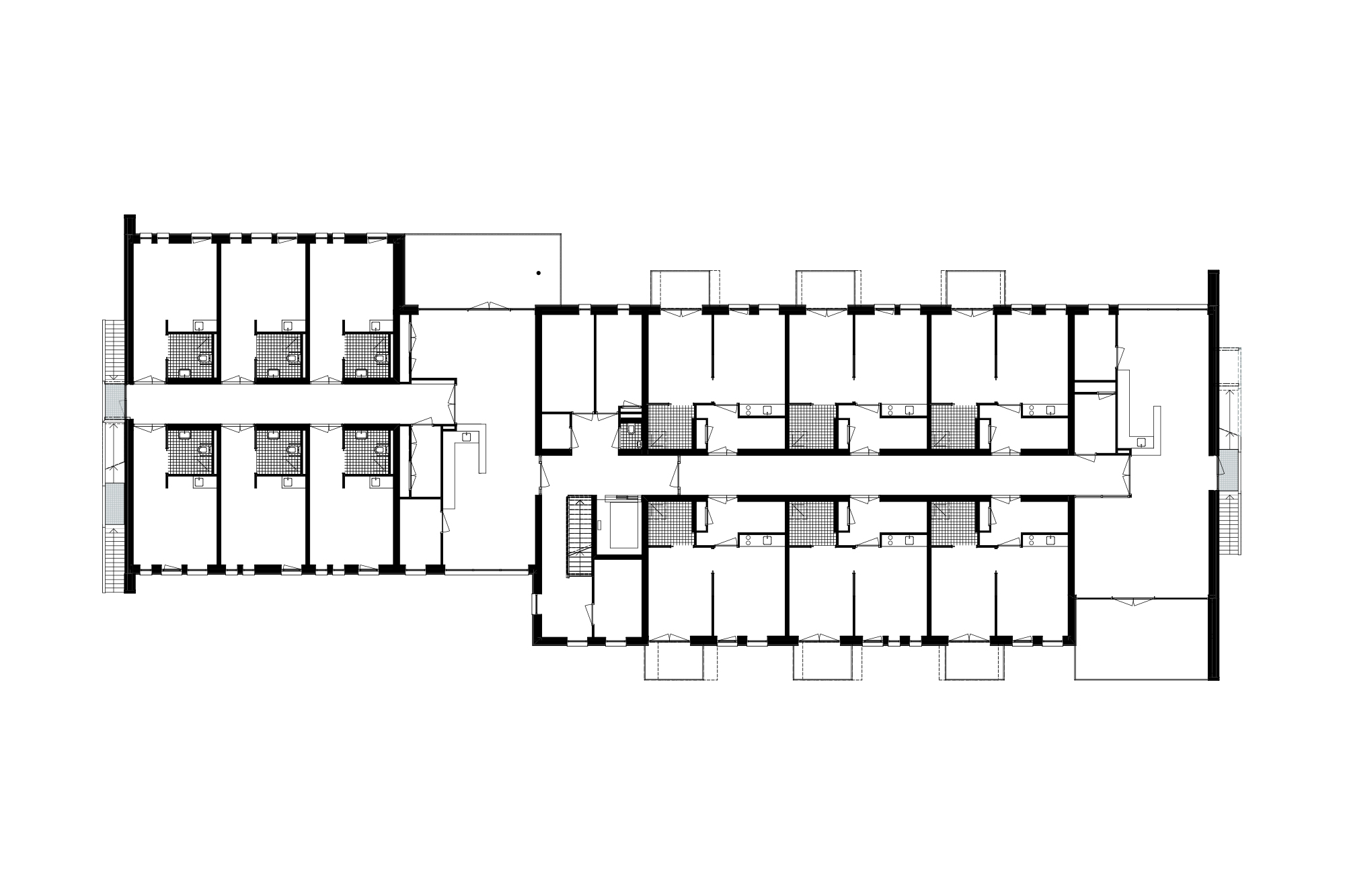
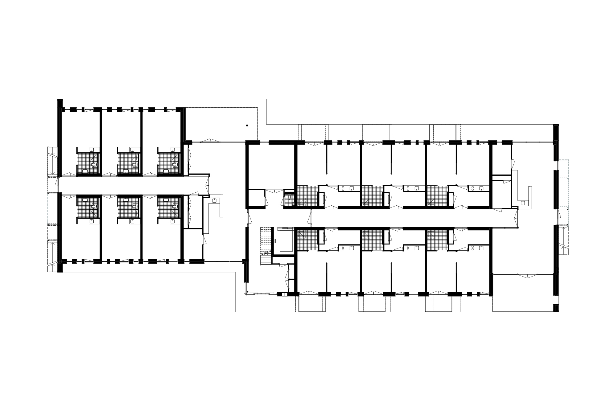
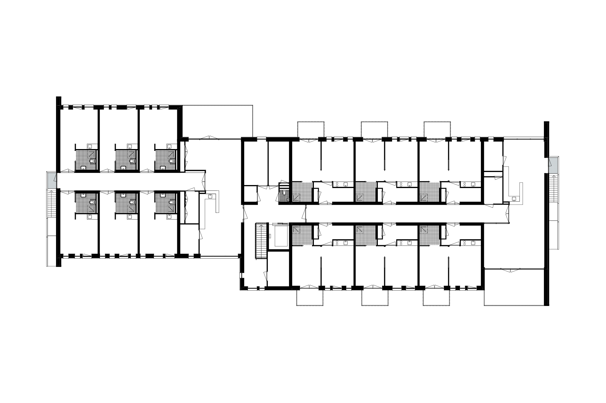
Aan de Ludgerstraat te Aalten staat het huidige woon-zorgcomplex voor ouderen: Beth San. Dit complex voldeed niet meer aan de hedendaagse eisen voor ouderenverzorging. In opdracht van Woningcorporatie De Woonplaats en Stichting Zorgcombinatie Marga Klompé hebben wij een nieuw plan voor het gebied ontwikkeld, waarbij de huisvesting voor de ouderen verdeeld wordt in diverse wooncategorieën over 7 vrijstaande gebouwen. Kenmerkend voor het plan is de centrale groene ruimte waaromheen de gebouwen gegroepeerd zijn. Aan de Ludgerstraat vormen drie gebouwen een begeleidende straatwand. De 3 respectievelijk 4 lagen hoge gebouwen zijn zorgvuldig gepositioneerd ten behoeve van een ontspannen straatprofiel. Het tweede gebouw daarvan, gebouw CD, is op 3 april 2012 opgeleverd.
Het plan omvat 24 zorgappartementen, een restaurant met winkeltje, dagbesteding ruimte, activiteitenruimte, vergader- en kantoorruimten en een kapsalon. Het ontwerp van het interieur is ook door ZEEP uitgevoerd, met als thema “Versmelting van heden en verleden”.