MFC ATLAS

opdrachtgever
WONINGSTICHTING LEUSDEN
team
JAN POOLEN
BRAM VAN BORSELEN
jaar
2017
programma
ONDERWIJS
WONEN
status
GEREALISEERD
locatie
LEUSDEN

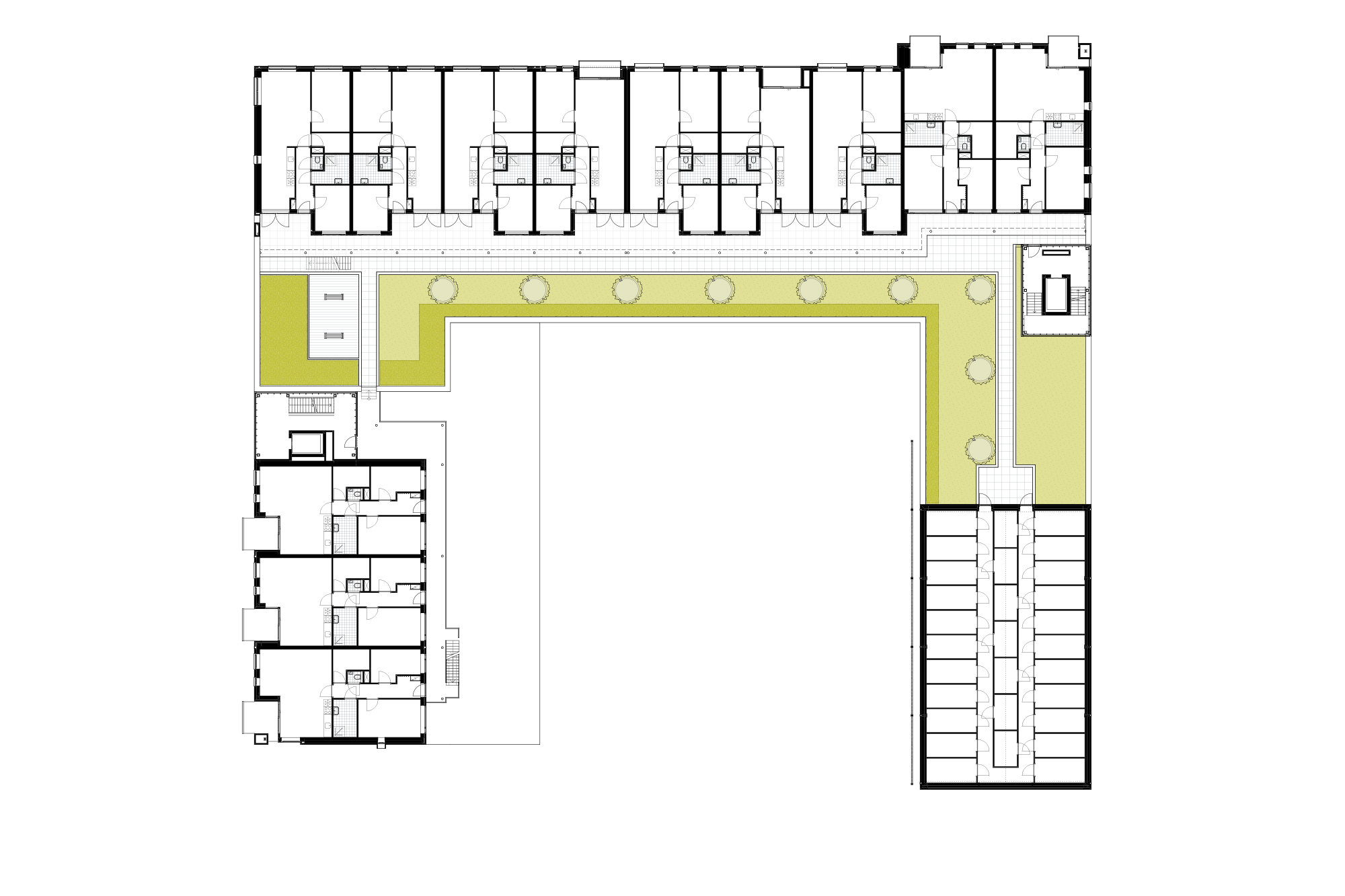
ZEEP heeft samen met Woningstichting Leusden en Heijmans het Multifunctioneel centrum ontworpen en gerealiseerd als onderdeel van de herontwikkeling van het winkelgebied De Biezenkamp in Leusden. Het plan omvat drie basisscholen, een gymzaal, kinderdagopvang en 38 sociale huurwoningen.

De plattegrond is opgezet in een U-vorm, waardoor de gebouwmassa een terrein omsluit dat een beschutte speelplaats biedt.

 

Door niet één groot gebouw te maken, maar visueel Individuele panden te creëren sluit het gebouw aan op de schaal en beeldkwaliteit van het plangebied.
Door met dakvormen en gevelopeningen en in kleurgebruik en detaillering te spelen heeft elk pand een eigen uitstraling. Uniform vormgegeven entrees en trappenhuizen rondom het gebouw rijgen de panden als het ware aan elkaar, waardoor onderlinge samenhang ontstaat.
Om dit te accentueren zijn deze terugkerende elementen minimalistisch en dus sterk afwijkend vormgegeven in wit beton, geperforeerd plaatmateriaal en glas.
De gelaagde gevel van het trappenhuis licht s ’avonds op als een lantaarn met filigrain.

De basisscholen hebben een plek op de begane grond en eerste verdieping gekregen. Daarboven bevinden zich 38 sociale huur appartementen. Bewoners kunnen gebruik maken van een gezamenlijke fietsenberging op begane grond.

Het MFC is voorzien van een warmtekoudeopslag (WKO) en zonnepanelen en wordt hierdoor voorzien van duurzame energie. De scholen dragen het label Frisse School en het gebouw heeft energielabel A+++.

Ook het interieur en schoolterrein zijn meegenomen in het ontwerp.
De drie basisscholen en KDV/BSO hebben elk een eigen plek en identiteit in het gebouw gekregen.

Hiernaast zijn er ook een aantal multifunctionele ruimtes, waaronder een centrale ruimte met tribune trap en aangrenzende flexibele speelzalen en een centrale keuken. Ook het speelterrein wordt door de scholen gedeeld. Het interieur wordt gekenmerkt door een spel van vlakken, waarbij de afwerking van de vloer, wand en het plafond op elkaar is afgestemd. Met een zorgvuldige keuze in grafische uitdrukkingen en kleurgebruik zijn plekken dan wel ruimtelijk als programmatisch gedefinieerd.