opdrachtgever
WONEN CENTRAALteam
JAN POOLENSTEPHAN SARPHATIE
ARMAND HERMANS
GERT VAN EIJDEN
LINDA MARTENS
jaar
2010programma
WONENCOMMERCIEEL
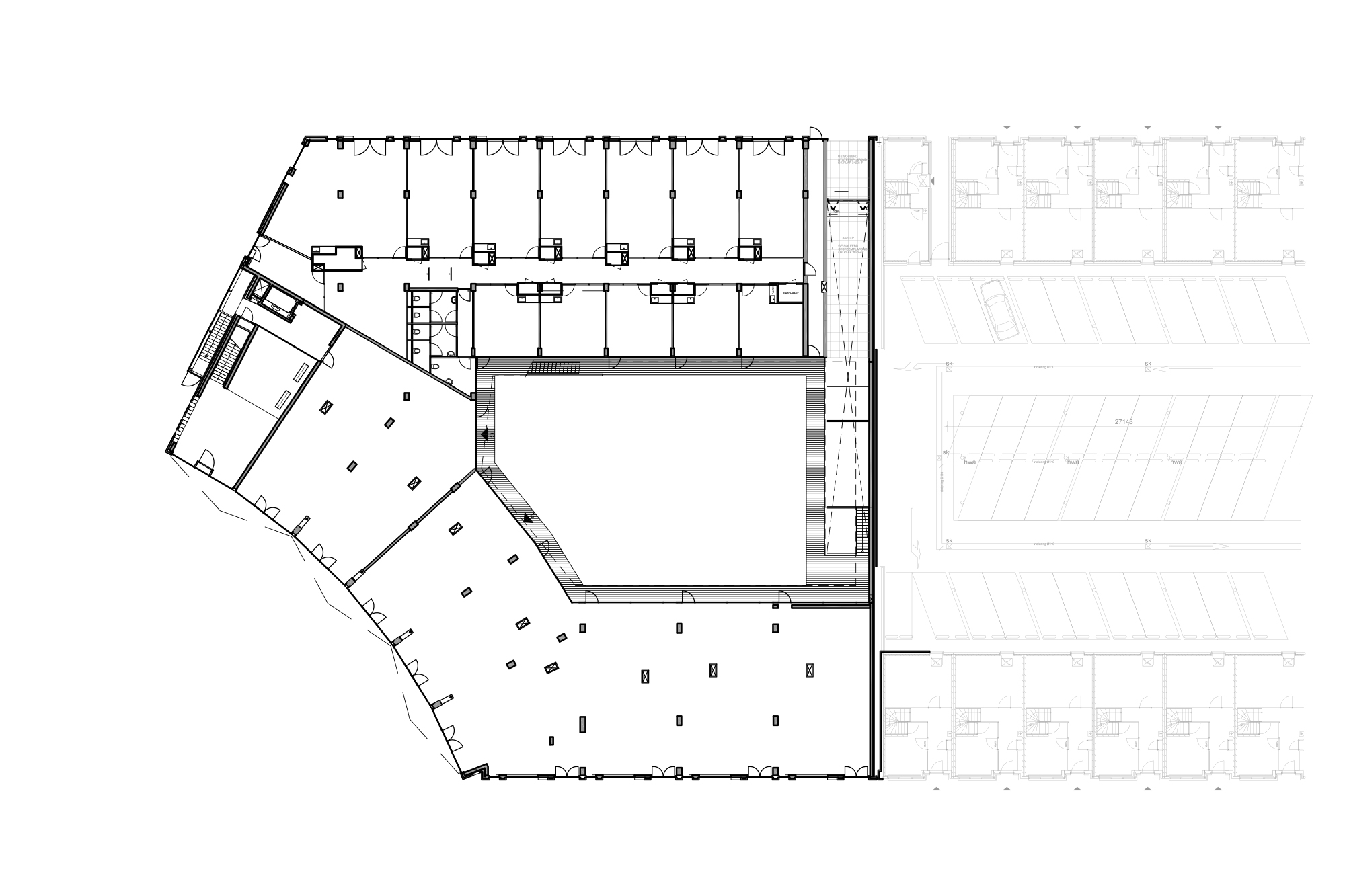
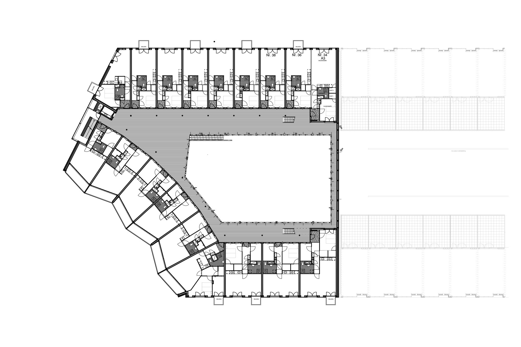
De stedenbouwkundige opzet van het gesloten bouwblok wordt ingevuld met een markante oplossing aan de rotonde. Het blok ligt ingeklemd tussen de parkstrip aan de Oostzijde (Station zijde), de belangrijke verkeersader en het plein aan de Westzijde.
De gevels zijn een dynamisch spel van wisselende gevelopeningen en willekeurig geplaatste glazen balkons. De gevel aan het plein volgt de ronding van de rotonde en is als een gefacetteerde gevel vormgegeven met wisselende verspringende terrassen. De print op het glas met geabstraheerde ijsschotsen refereert aan de naam van het complex: ‘Antarctica’. Het complex bevindt zich in Alphen aan den Rijn.
De binnenzijde is een collectieve binnentuin, gematerialiseerd in hout, groen-wit plaatmateriaal en glas. De plattegronden, variërend van 55 – 78 m² zijn divers, flexibel en geschikt voor starters en jongeren. De begane grond is specifiek vormgegeven als commerciële plint. Onder het blok is een stallingsgarage, waar ruimte opgenomen is voor Greenwheels, waardoor we de parkeerdruk verkleind hebben.