LAGE ZIJDE

opdrachtgever
WOONFORTE
BAM WONINGBOUW
team
JAN POOLEN
BRAM VAN BORSELEN
RONALD VAN AGGELEN
jaar
2017
programma
WONEN
status
GEREALISEERD
locatie
ALPHEN A.D. RIJN

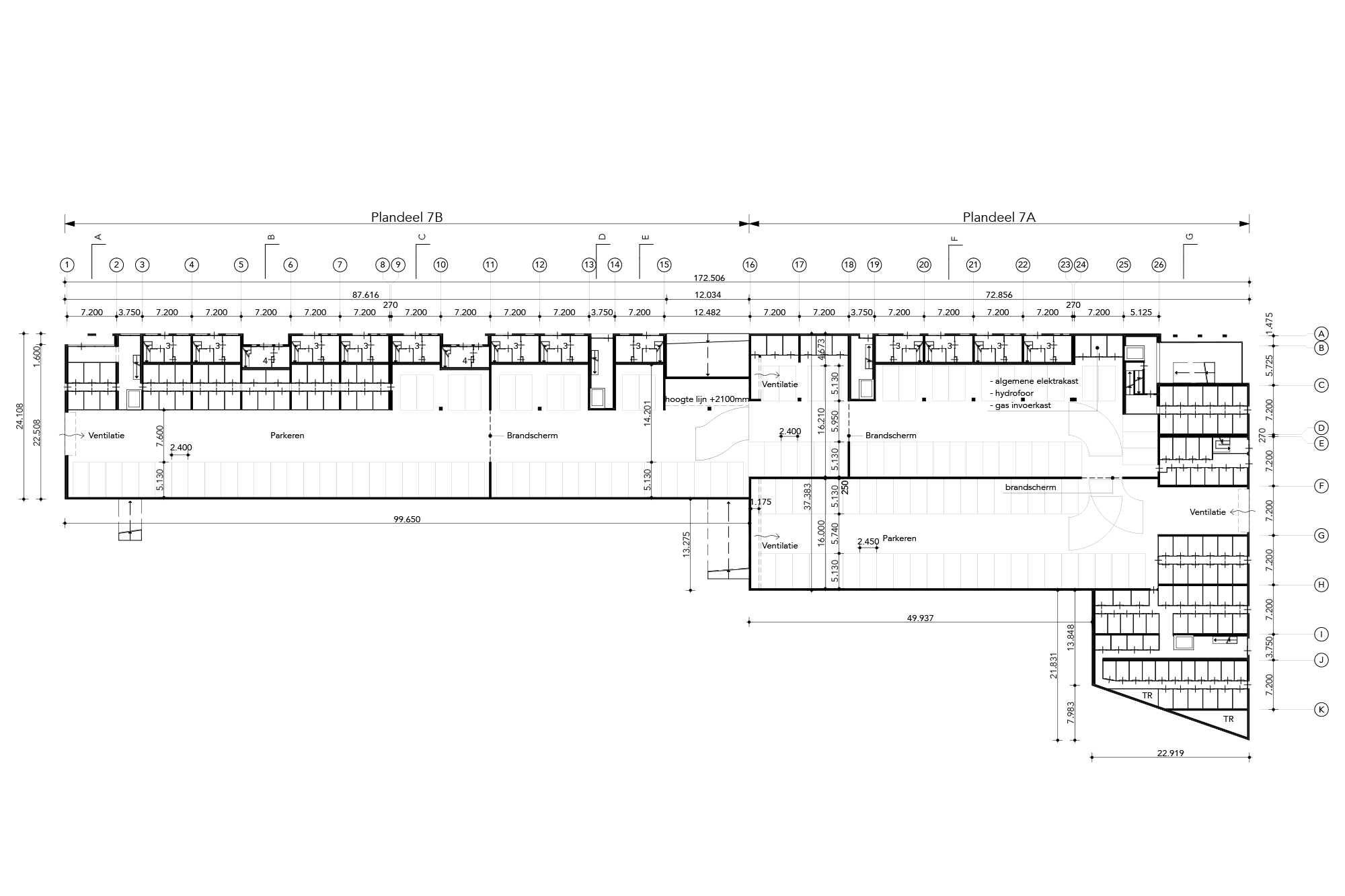
Drie gebouwen, met in totaal 186 appartementen, vormen de eerste aanzet tot de ontwikkelingen van een nieuwe stadsentree vanaf de Lage Zijde van Alphen aan den Rijn. Het plan bestaat uit een 4 laagse bebouwing op een half verhoogde parkeergarage, wat in hoogte goed aansluit op de bebouwing in de omgeving. Een drietal accenten markeren de entree van het gebied en begeleiden de passanten langs de Thorbeckelaan naar het hart van het nieuwe stadscentrum. Aan de Kromme Aar zijde openen de gebouwen zich naar het park toe en omarmen het groen. Doordat de glooiende openbare ruimte zich met één beweging tot in de hoven doorzet, ontstaat er een overgang tussen privé en openbaar. De plekken langs het water worden vervolgens gemarkeerd d.m.v. vier unieke koppen van de gebouwen, die tot aan het water reiken. Op verschillende plekken zijn verbijzonderingen in materialisering toegepast om de gebouwen karakter te geven.